所在地福岡県久留米市国分町1907-3
下記のマップコードをカーナビゲーションに入力すると目的地登録ができます。
マップコード:37 438 585*20
インナーガレージと大型バルコニーのあるデザイン住宅。
照明・カーテン・エアコン付きで、今すぐ住める築7年の築浅中古住宅です。
※お支払い例は40年返済、3,690万円借り入れ、自己資金0円、変動金利1.0%の地方銀行借り入れを利用した場合です。別途各種費用が必要になります。







所在地福岡県久留米市国分町1907-3
下記のマップコードをカーナビゲーションに入力すると目的地登録ができます。
マップコード:37 438 585*20
Location| 久大本線南久留米駅 | 1750m (徒歩約22分) |
|---|---|
| 西鉄天神大牟田線花畑駅 | 2187m (徒歩約28分) |
| 久留米市立南小学校 | 739m (徒歩約9分) |
| 久留米市立牟田山中学校 | 450m (徒歩約6分) |
| ハローデイ国分店 | 1164m (徒歩約15分) |
| ファミリーマート久留米国分町店 | 362m (徒歩約5分) |
| ディスカウントドラッグコスモス久留米南店 | 919m (徒歩約12分) |
| 久留米南町郵便局 | 954m (徒歩約12分) |
| 筑邦銀行南町支店 | 985m (徒歩約12分) |
※徒歩分数は80mを1分として算出した概算時間です。
Outline| 物件名 | 中古一戸建 久留米市国分町 |
|---|---|
| 所在地 | 福岡県久留米市国分町1907-3 |
| 交通 | 久大本線南久留米駅 徒歩約22分 西鉄天神大牟田線花畑駅 徒歩約28分 |
| 小学校区 | 久留米市立南小学校 徒歩約9分 |
| 中学校区 | 久留米市立牟田山中学校 徒歩約6分 |
| 販売価格 | 3,690万円(税込み) |
| 土地面積 | 公簿 176.2m2(約53.30坪) |
| 建物部分面積 | 1階部分:79.91m2 2階部分:47.61m2 |
| 構造 | 木造 |
| 階建 | 地上2階 |
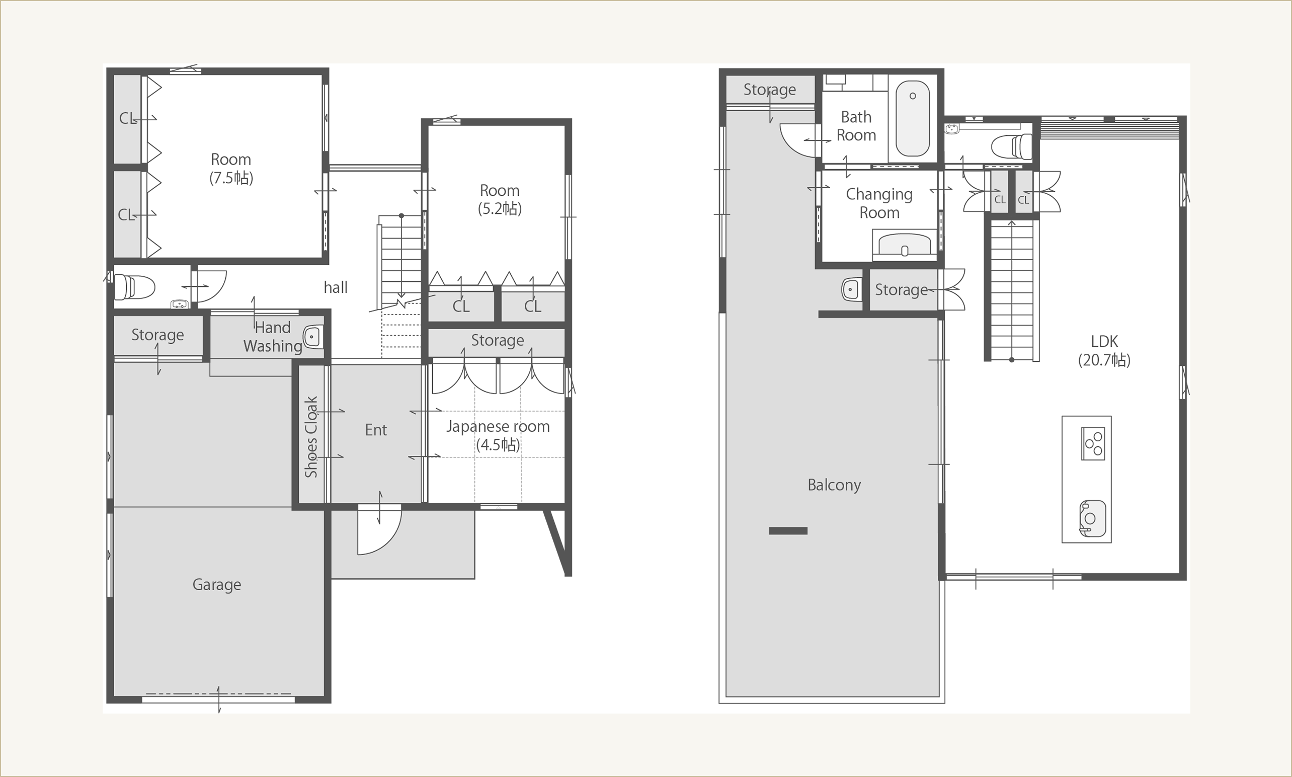
| 間取内訳 | LDK20.7畳 / 洋室7.5畳 / 洋室5.2畳 / 和室4.5畳 / S15.3畳 |
| 築年月 | 2018[H30]年07月 (築7年8ヶ月) |
| 駐車場 | 有、駐車場2台分 |
| 駐車場備考 | ビルトインガレージ |
| 引き渡し可能時期 | 即時 |
| 現況 | 空家 |
| 土地権利 | 所有権 |
| 土地形状 | 正方形 |
| 都市計画 | 市街化区 |
| 用途地域 | 一種中高層 |
| 地目 | 宅地 |
| 地勢 | 平坦 |
| 接道状況詳細 | 一方道路 (南、幅:6m、公道、接面:10.7m、舗装有) |
| 設備 | エアコン、照明器具付き、複層ガラス、24時間換気システム、間接照明、全室照明付、ダウンライト、カーテン付、ブラインド付、ロールスクリーン付、リビング階段、電動シャッター、システムキッチン、食器洗浄乾燥機、アイランドキッチン、キッチンに窓、コンロ口数(3口以上)、IHクッキングヒーター、オール電化、省エネ給湯器、電気、浴室乾燥機、浴室に窓、浴室暖房、ジェットバス、トイレ2箇所、温水洗浄便座、タンクレストイレ、スマートロック、ダブルロックキー、TVモニタ付きインターホン、火災報知機、全居室収納、玄関収納、南面バルコニー、坪庭、上水道、下水道 |
| 特記事項 | 日当り良好、閑静住宅街 |
| 取引様態 | 売主 |